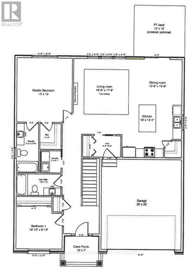
This custom-built home by Van Huizen Homes, located in the growing community of Woodland Heights, perfectly blends contemporary design with everyday convenience. The home features 2 spacious bedrooms on the main floor, including a luxurious primary bedroom with an ensuite that boasts a double vanity and a walk-in closet. The second bathroom on the main floor adds extra convenience for guests or family. The open-concept living space is perfect for both relaxing and entertaining. The living room is highlighted by a stunning tray ceiling, adding both elegance and height to the room. The kitchen is designed with functionality in mind, featuring a corner pantry with ample storage. For added practicality, the home includes a main floor laundry room and a mudroom that leads directly into the attached two-car garage, offering a seamless transition between the indoors and outdoors. Step outside to enjoy the 12' x 12' rear deck, ideal for relaxing or hosting gatherings. There's also the option to cover the deck for added comfort and versatility. If you're looking for even more space, the basement can be finished at an additional cost to include a third or fourth bedroom, another bathroom, and a recreation room - perfect for entertaining or creating your own private retreat. Visit the model home at 37 Deerview Drive to see how this thoughtfully designed home can be customized to fit your lifestyle with Van Huizen Homes! This new construction home does qualify for the new HST Rebate, with an after rebate value of $778,761.06!! (id:15069)
| MLS® Number | X12976998 |
| Property Type | Single Family |
| Community Name | Murray Ward |
| Amenities Near By | Beach, Golf Nearby, Hospital, Marina, Schools, Ski Area |
| Features | Flat Site, Sump Pump |
| Parking Space Total | 6 |
| Structure | Deck, Porch |
| Bathroom Total | 2 |
| Bedrooms Above Ground | 2 |
| Bedrooms Total | 2 |
| Age | New Building |
| Appliances | Garage Door Opener Remote(s), Water Heater |
| Architectural Style | Bungalow |
| Basement Development | Unfinished |
| Basement Type | N/a (unfinished) |
| Construction Style Attachment | Detached |
| Cooling Type | Central Air Conditioning |
| Exterior Finish | Vinyl Siding, Stone |
| Fire Protection | Smoke Detectors |
| Foundation Type | Poured Concrete |
| Heating Fuel | Natural Gas |
| Heating Type | Forced Air |
| Stories Total | 1 |
| Size Interior | 1,100 - 1,500 Sqft |
| Type | House |
| Utility Water | Municipal Water |
| Attached Garage | |
| Garage |
| Acreage | No |
| Land Amenities | Beach, Golf Nearby, Hospital, Marina, Schools, Ski Area |
| Sewer | Sanitary Sewer |
| Size Depth | 131 Ft |
| Size Frontage | 52 Ft |
| Size Irregular | 52 X 131 Ft |
| Size Total Text | 52 X 131 Ft |
| Zoning Description | R2 |
| Level | Type | Length | Width | Dimensions |
|---|---|---|---|---|
| Main Level | Living Room | 4.57 m | 5.27 m | 4.57 m x 5.27 m |
| Main Level | Dining Room | 3.23 m | 3.29 m | 3.23 m x 3.29 m |
| Main Level | Kitchen | 3.96 m | 3.78 m | 3.96 m x 3.78 m |
| Main Level | Mud Room | 2.01 m | 0.91 m | 2.01 m x 0.91 m |
| Main Level | Laundry Room | 1.52 m | 0.94 m | 1.52 m x 0.94 m |
| Main Level | Primary Bedroom | 3.96 m | 4.57 m | 3.96 m x 4.57 m |
| Main Level | Bathroom | 1.59 m | 3.51 m | 1.59 m x 3.51 m |
| Main Level | Bedroom 2 | 3.08 m | 2.77 m | 3.08 m x 2.77 m |
| Main Level | Bathroom | 3.08 m | 1.52 m | 3.08 m x 1.52 m |
| Cable | Installed |
| Electricity | Installed |
| Sewer | Installed |
https://www.realtor.ca/real-estate/29579748/20-deerview-drive-quinte-west-murray-ward-murray-ward
Contact us for more information
No Favourites Found
The trademarks REALTOR®, REALTORS®, and the REALTOR® logo are controlled by The Canadian Real Estate Association (CREA) and identify real estate professionals who are members of CREA. The trademarks MLS®, Multiple Listing Service® and the associated logos are owned by The Canadian Real Estate Association (CREA) and identify the quality of services provided by real estate professionals who are members of CREA. The trademark DDF® is owned by The Canadian Real Estate Association (CREA) and identifies CREA's Data Distribution Facility (DDF®)